Newsletter vom 01. Juli 2020
Ein echter Hingucker. Wohnmobil mal etwas anders.

Es gilt für alle Veranstaltungen: Immer vorher nachfragen ob Corona etwas dagegen hat:
Tel.: +49 5141 909080
Fax: +49 5141 90908710
info@celle-tourismus.de
www.celle-tourismus.de
Die wissen (fast) alles!
Joscho Stephan Quartett Jazz Pop Rock

12 | 07 | 2020 15:30 - 00:00 Uhr
Joscho Stephan Quartett Jazz Pop Rock Veranstaltungsort: Schloss Celle
Swing im Schlosshof: Wie kein anderer prägt Joscho Stephan den modernen Gypsy Swing: Mit harmonischer Raffinesse, rhythmischem Gespür und atemberaubender Solotechnik hat sich der Gitarrist international einen herausragenden Ruf erspielt. Aus der Vielzahl aktueller Gypsy Swing Adaptionen ragt er als kreativer Visionär heraus, indem er neben vielen Interpretationen bekannter Klassiker den Gypsy Swing mit Latin, Klassik und Rock liiert.
Eintritt: 25,00 € | Bitte beachten: Die Veranstaltung findet mit freier Platzwahl im Schlosshof statt. Die gebuchten Sitzplätze gelten nur, wenn die Veranstaltung bei schlechtem Wetter ins Schlosstheater verlegt wird. Für die Buchung von Rollstuhl-Plätzen schreiben Sie bitte eine Mail an tickets@kultur-querbeet.de
Platzreservierungen

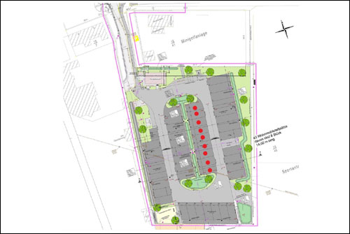
Immer wieder ein umstrittenes Thema. Brauchen wir diesen arbeitsintensiven Service wirklich? Wir versuchen damit Gästen die eine lange Anfahrt hinter sich haben, einen Stellplatz zu garantieren. Wer kennt das nicht, 600km Fahrt und dann die endlose Suche nach einem freien Platz. Das macht keinen Spaß und darum machen wir das. Auch wenn wir immer wieder mit bösen Kommentaren bedacht werden. Damit aber die Reservierungshütchen aber nicht wild auf dem Platzverstreut sind, diese neue Regelung.
Roter Punkt: Das sind die zukünftig reservierbaren Plätze 22-30. Natürlich können nach Ankunft auch Plätze getauscht werden, wenn ein vermeintlich schönerer Platz besser gefällt. Bitte aber den Service-Damen dann mitteilen.
Einladung zur kostenlosen Entdeckertour

Besuchen Sie uns als Familie, mit Freunden oder in einer Gruppe und erleben Sie Celle digital! Laden Sie dafür kostenlos bei Google Play oder Amazon die „Entdeckertour Celle“ der Fa. Scoutix runter und gehen Sie auf Entdeckungstour. Unterwegs erfahren Sie während einer Stadtralley alles Wissenswerte zu den Sehenswürdigkeiten und entdecken die Hotspots in Celle. (Die App steht aktuell nur für Android zur Verfügung)
Geführter Rundgang durch Celle

Ab sofort sind öffentliche Stadtführungen in Celle wieder möglich! Entdecken Sie die Celler Altstadt mit ihren über 480 historischen Fachwerkhäusern und dem Celler Herzogschloss. In Gruppen bis ca. 16 Personen pro GästeführerIn erkunden Sie noch viele weitere Sehenswürdigkeiten zu Fuß.
Wann: täglich um 11 Uhr (1,5h)
Preis: 7,00 € p.P. Treffpunkt: Brücke vor dem Schloss, Schloßplatz
Gruppengröße: ca. 16 Personen Während der Führung muss ein Mund- und Nasenschutz getragen werden.
Anmeldung empfohlen: Tel.: +49 5141 / 909080 oder fuehrungen@celle-tourismus.de
Der Blick in den Kochtopf der Rathaus-Cafeteria

Freitag, 3. Juli
Spaghetti mit Wildlachswürfel und Kirschtomaten an Limettensauce 6,20€
Die Wochenübersicht und das Menu des Tages wie immer im Kassenhäuschen.
Unser Silvesterevent
So langsam wird es Zeit sich zu entscheiden. 70% der Plätze sind bereits belegt. Programm auf unserer Homepage: www.womo-celle.de
Bleibt oder werdet gesund und nicht vergessen: Immer schön Abstand halten!
Wieland und das Team vom Stellplatz

